Construction Plan
Phase 1 Construction – Basement Remodel Highlights
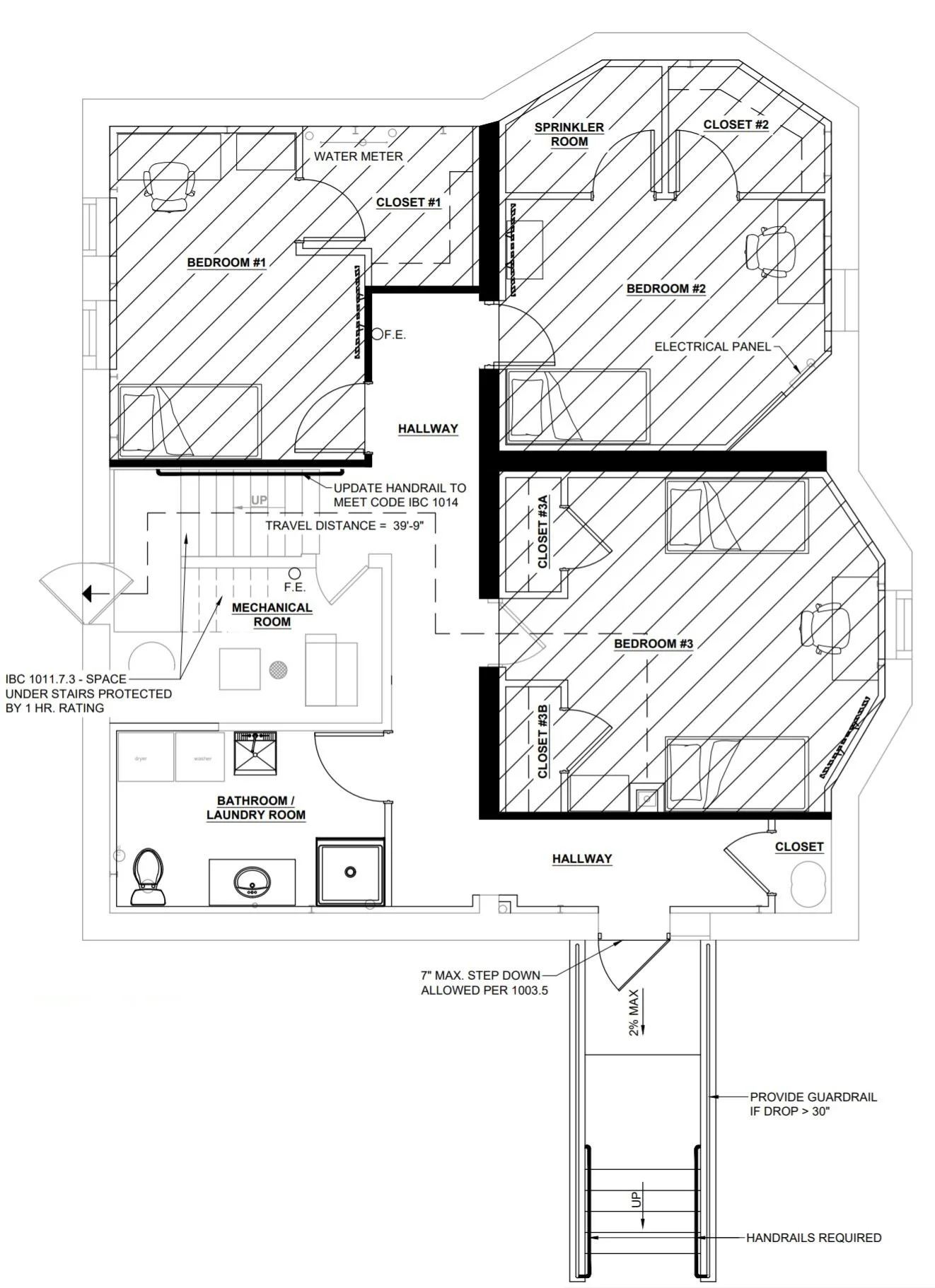
- Install Furring Walls Around Existing Foundation Walls
- Install Wood Stud Walls. Provide Sound Insulation In New Bedroom And Restroom Walls
- Install Interior Doors For Existing Openings
- Asbestos Abatement May Be Required
- Remove Existing Threshold At Existing Interior Openings And Doors
- Install New Handrail For Existing Stairs
- Install 1 Hr Fire Partition & Horizontal Assembly For Walls And Ceiling
- Install Fire Extinguishers
- Install New Toilet, Vanity Sink, Shower Stall, And Laundry Sink
- Move Washer & Dryer
- Install 1 Hr Rating Under Existing Stairs
- Install Fire Sprinkler System Throughout Basement
- Install Sanitary Drain And Vent For New Laundry Sink
- Remove Excess Walls, Plumbing Lines, Equipment, Lighting, Unused Wiring, And Concrete
- Install Finishes (Floor/wall) · Install Electrical & Lighting
- Remove And Replace Existing Retaining Walls
- Install Guardrail On New Retaining Walls
- Re-grade Soil To Slope Away From Building & Retaining Walls
- Install New Exterior Door
- Install Exterior Stoop And Stair With Handrails
- Re-grade Exterior Grade Around New Retaining Wall And Stairs
Phase 2 Construction – 2nd Floor Remodel Highlights
- Window and Door Upgrades
- Electrical, Mechanical & Communication Upgrades
- Fire Suppression System
- Bedroom and Bathroom Demolition & Remodel
- Floor and Woodwork Replacement/Refurbishing
Phase 3 Construction - 1st Floor Remodel Highlights
- Window & Door Upgrades
- Electrical, Mechanical & Communication Upgrades
- Fire Suppression System (1st floor)
- Demolition & Remodel of 1st Floor
- Reclaim / Replace Existing Woodwork to match Existing
- Fireplace & China Cabinet Refurbishing
- Interior Furnishings & Appliances
